Onder bod:Kerkakkerstraat 8, 5551 TC Valkenswaard - Foto
Onder bod
+36

Kerkakkerstraat 8 5551 TC Valkenswaard € 595.000,- k.k.

  • Woonhuis
  • 5 kamers
  • 4 slaapkamers
  • Bouwjaar 1961
  • 650 m² perceeloppervlakte
  • 148 m² gebruiksoppervlakte
  • C Energielabel C

Beschrijving

Deze vrijstaande woning is gelegen Oud Dommelen (gemeente Valkenswaard), in een rustige straat. De vrijstaande woning is gebouwd in 1961 en heeft een perceeloppervlakte van 650 vierkante meter. Het gebruiksoppervlak van de woning bedraagt 148 vierkante meter.

De woning is voorzien van een mooie tuin, gelegen op het noordwesten. Hierdoor kunt u de hele dag genieten van de zon in de tuin. Daarnaast beschikt de woning over een garage met smeerput, ideaal voor de klussers onder ons.

De ligging van de woning is ideaal in een rustige straat met een bushalte in de nabijheid en een goede ontsluiting naar Eindhoven en Veldhoven. De N69 is snel bereikbaar en daarmee een goede en snelle verbinding naar Eindhoven, ASML en de Hightech campus. De omgeving van Valkenswaard staat bekend om zijn mooie natuur en vele wandel- en fietsroutes.

Indeling:
Kelder, kleine maar praktische kelderruimte.

Begane grond:
Entree met meterkast, trapopgang en toegang tot de woonkamer ensuite serre en keuken met eenvoudige keukeninrichting. Vanuit de keuken bereikt met via een portaal de berging met toegang tot een toilet en een doucheruimte.

Buiten:
Oprit met parkeer mogelijkheid voor meerdere auto's.
Garage met smeerput en berging.
Mooie ruime tuin met houten tuinberging.

Eerste verdieping:
Overloop, vier ruime slaapkamers deels voorzien van vaste kasten.
Kast met vaste trap naar de verdieping.

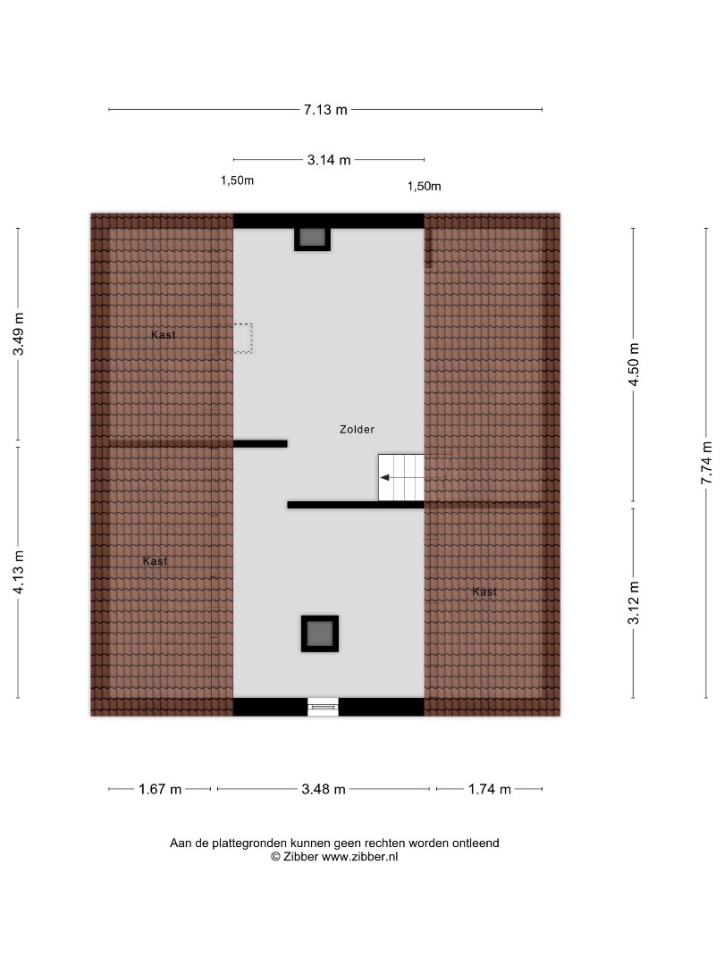
Tweede verdieping:
Ruime en praktische zolderruimte, hier kunt u ook nog meerdere kamers realiseren.

Bijzonderheden:
De woning is voorzien van kunststofkozijnen met isolerende beglazing.
De combiketel is uit 2005
De woning is voorzien van 8 zonnepanelen.
De koper moet rekenen met moderniseringskosten.

Kortom, deze eengezinswoning is gelegen op een mooie locatie, heeft een ruime tuin, een garage en is ideaal voor gezinnen. Bent u op zoek naar een vrijstaande woning in Valkenswaard? Dan is deze woning zeker het bezichtigen waard.

Een bod uitbrengen kan op Eerlijk bieden https://app.eerlijkbieden.nl/auction/67a0d49ee08cb4c73c7811f0

Kaart

Kenmerken

Overdracht

Referentienummer
00012
Koopsom
€ 595.000,- k.k.
Status
Onder bod
Aanvaarding
In overleg
Aangeboden sinds
Maandag 16 maart 2026
Laatste wijziging
Woensdag 22 april 2026

Bouw

Type object
Woonhuis, eengezinswoning, vrijstaande woning
Soort bouw
Bestaande bouw
Bouwperiode
1961
Dakbedekking
Bitumen
Dakpannen
Type dak
Zadeldak
Isolatievormen
Dakisolatie
Dubbel glas

Oppervlaktes en inhoud

Perceeloppervlakte
650 m²
Woonoppervlakte
148 m²
Woonkameroppervlakte
30 m²
Keukenoppervlakte
8 m²
Inhoud
655 m³
Oppervlakte overige inpandige ruimten
29 m²
Oppervlakte externe bergruimte
41 m²
Oppervlakte gebouwgebonden buitenruimte
18 m²

Indeling

Aantal bouwlagen
3 (en 1 kelder)
Aantal kamers
5 (waarvan 4 slaapkamers)
Aantal toiletten
1

Locatie

Ligging
In centrum
In woonwijk

Tuin

Type
Tuin rondom
Hoofdtuin
Ja
Oriëntering
Noorden
Staat
Dient nog te worden aangelegd.

Energieverbruik

Energielabel
C

CV ketel

Warmtebron
Gas
Bouwjaar
2005
Eigendom
Eigendom

Uitrusting

Verwarmingssysteem
Centrale verwarming
Badkamervoorzieningen
Douche
Parkeergelegenheid
Inpandige garage
Heeft kabel-tv
Ja
Tuin aanwezig
Ja
Heeft een garage
Ja
Heeft zonnepanelen
Ja

Kadastrale gegevens

Kadastrale aanduiding
Valkenswaard G 1190
Perceeloppervlakte
650 m²
Omvang
Geheel perceel
Eigendomsituatie
Eigen grond